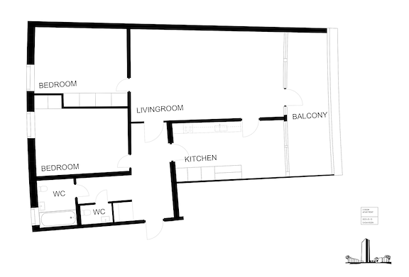
A 3-room apartment

Consists of livingroom, two bedrooms, hall, kitchen, bathroom, and balcony/patio. Square measures: 72-84 square meters (775-904 square feet). These apartments are only for families.

The pictures show what an apartment of this size may look like.
The colors of the walls and the type of furniture can vary between the different apartments.